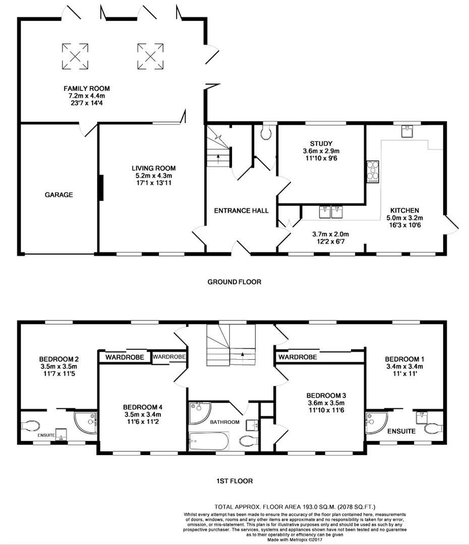
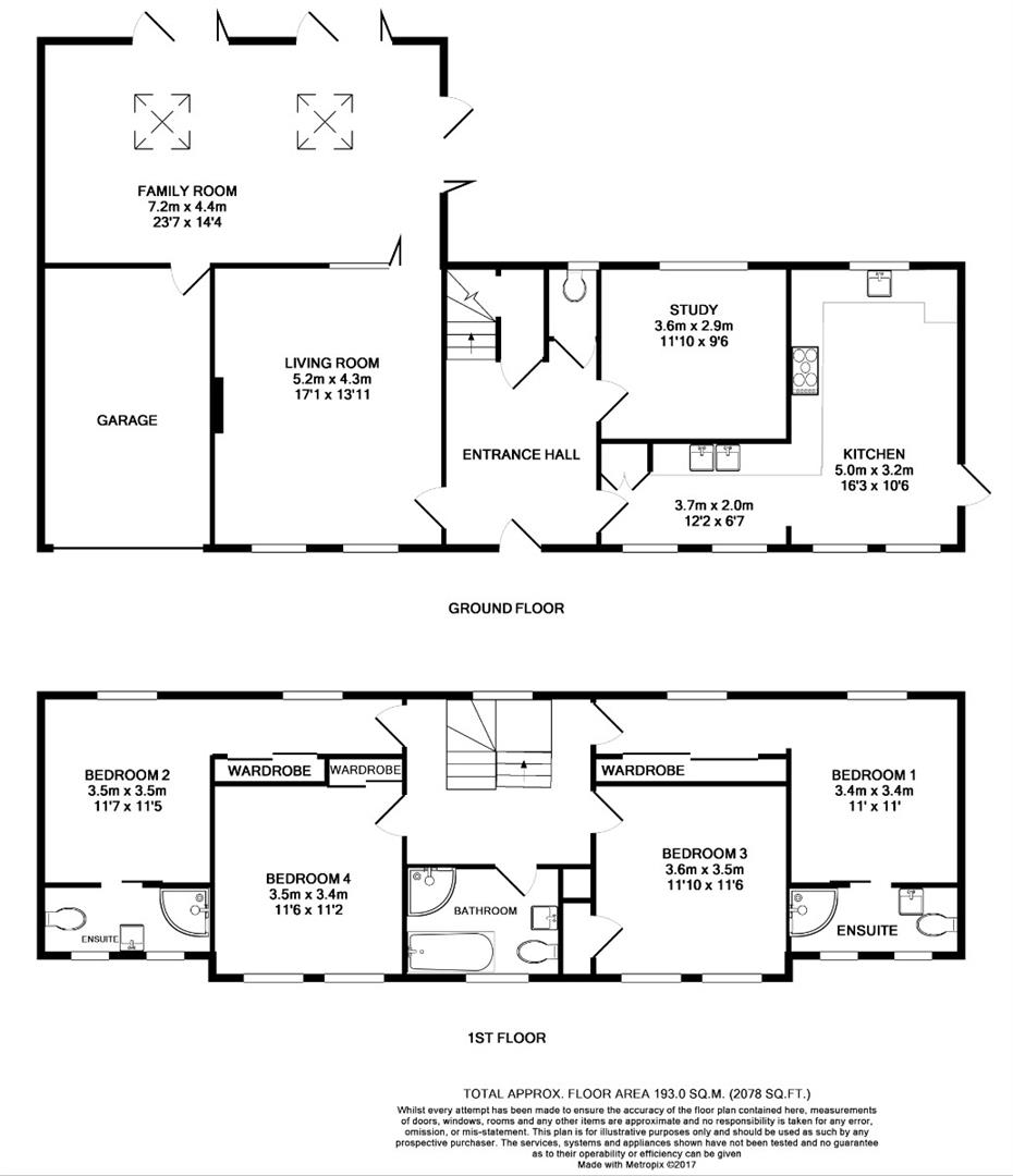
Floorplan for Reading, RG10
For Sale

Floorplan for Reading, RG10
View Floorplan View EPC
Enquire Now Call Us
Take me There More Images
Back to List Search Again